Décoration et design
Comment le designer Brian McCourt a conçu une élégante maison pour sa mère avec un budget limité
Publié le 14 août 2025

Conviviale, chaleureuse, amusante, colorée et modeste sont les adjectifs qui décrivent non seulement la nouvelle maison de ma mère, mais aussi ma mère, Jennine McCourt, elle-même. Je suppose que c’est ce à quoi nous aspirons en tant que designers : créer des intérieurs qui reflètent les personnes qui y vivent. Après le décès de mon père, nous avons dû vendre la maison familiale et trouver quelque chose de plus simple, spécial et plus facile à entretenir pour ma mère, afin qu’elle puisse se concentrer sur sa famille plutôt que sur une propriété trop grande pour elle.
Nous avons trouvé cette maison en milieu de construction de 1 200 pieds carrés à Morrisburg en Ontario (lieu où ma mère a passé la majeure partie de sa vie), au prix de 430 000 $. Elle avait une configuration compacte parfaite : suffisamment petite pour sa vie quotidienne, mais suffisamment décloisonnée pour accueillir des fêtes de famille. Une heure après avoir visité les lieux, nous signions les papiers pour un déménagement prévu trois mois plus tard. Nous devions rapidement élaborer un plan d’aménagement comprenant le carrelage, le parquet, les robinets, les éviers, les moulures, les portes, les moulures, les poignées, l’éclairage et tous les autres éléments de finition de la nouvelle habitation.
Le revêtement extérieur en épicéa foncé et la maçonnerie définissent le charme extérieur de la maison.
« Cette maison répondait à mes besoins en termes de réduction de la taille de mon logement, les voisins semblaient formidables, les murs étaient insonorisés et elle était proche des commerces », explique Jennine. « C’était un nouveau départ pour moi, et je suis très reconnaissante envers Brian d’avoir dirigé le projet. Je voyais ce qui était devant moi, mais lui voyait plus loin. »
Le designer Brian McCourt avec sa mère, Jennine McCourt, dans la cuisine.
Nous n’avons pas perdu une minute et nous nous sommes mis au travail. Nous avons fusionné les éléments de finition de la rénovation et les choix d’ameublement et de décoration en un seul calendrier afin que chaque pièce puisse être meublée, finie et fabuleuse, et ce, rapidement ! J’ai commencé par noter les dates clés auxquelles les matériaux de la première phase de rénovation devaient être sur place (bois franc, carrelage, plomberie), puis j’ai priorisé le choix des meubles à délai de livraison long, notamment le canapé sur mesure, les fauteuils pivotants, les chaises de salle à manger et la tête de lit. Nous disposions d’un budget limité et nous avons dépensé cet argent de manière stratégique. Nous avons investi dans les finitions que je considérais comme les plus importantes : les comptoirs, le plancher de bois franc et les principaux éléments en tissu.
Les armoires peintes en vert mousse, les accents métalliques chaleureux et les motifs éclatants au-dessus du dosseret forment une combinaison parfaite dans la cuisine. Des étagères ouvertes s’étendent sur toute la longueur de la fenêtre.
Nous avons opté pour des comptoirs Caesarstone haut de gamme dans la nouvelle couleur Aterra Verity, qui présente des veines dorées naturelles qui s’harmonisent parfaitement avec le parquet en chêne. Nous avons trouvé la couleur de plancher idéale chez Fuzion Flooring : une teinte intermédiaire chaleureuse, suffisamment claire pour ne pas laisser voir beaucoup de poussière et suffisamment foncer pour ne pas laisser voir beaucoup de saleté. Les nuances bronze s’accordaient parfaitement avec notre palette. Nous avions prévu d’installer des pierres naturelles au-dessus des étagères de la cuisine mais, par hasard, j’ai trouvé dans mon bureau cet échantillon de papier peint Lee Jofa qui a donné vie à la couleur verte fraîche des armoires. Les petits budgets ne permettent généralement pas d’acheter du papier peint haut de gamme ; nous l’avons utilisé avec parcimonie et le motif a renforcé l’ensemble. Ça en valait vraiment la peine !
Coûts principaux de la cuisine
Dosseret et comptoir : 10 000 $
Évier : 559 $
Tabourets de comptoir : 440 $
Papier peint : 400 $
Robinet : 239 $
Tapis de couloir : 239 $
Suspensions : 160 $/paire
Luminaire de plafond : 75 $
Horloge et balance vintage : 45 $
Plancher en bois franc : 8,20 $/pi²
Poignées d’armoires : 7 $ chacune
Les sièges moelleux contrastent avec la table à manger rustique en bois fabriquée par le père de Brian il y a de nombreuses années. Une lampe suspendue de forme organique ajoute une touche moderne.
Cela m’amène à l’aspect financier du projet : économiser, économiser, économiser ! Nous avons acheté par exemple des panneaux de rideaux chez Ikea et les avons installés avec des anneaux à pince pour économiser sur les habillages de fenêtres. Pour la salle à manger, j’ai restauré la table à tréteaux que mon père a fabriquée il y a près de 50 ans. Mon père a fabriqué la plupart de nos meubles, et cette table est l’une de ses premières créations, datant d’avant ma naissance. Chaque éraflure, marque et rayure gravée dans la table est le fruit de mon enfance, et il était important pour moi de ne pas effacer toutes ces histoires de la surface. Le design original comportait un encastrement de carreaux au centre, qui servait de sous-plat pratique pour les assiettes chaudes d’une famille de neuf personnes. J’ai trouvé un charmant motif de carreaux qui s’harmonisait avec la palette de couleurs de la maison et j’ai restauré le bois pour qu’il s’accorde avec le plancher en bois franc. Ce projet était spécial pour moi, car d’une certaine manière, mon père et moi avons fabriqué cette table ensemble, à plusieurs années d’intervalle.
Le salon accueillant est doté de fauteuils confortables rehaussés de pièces en bois, le tout agrémenté de rideaux doux, de textiles et d’œuvres d’art.
Ma mère a 13 petits-enfants, donc la durabilité était également une priorité. Je ne voulais pas créer un showroom ; c’était sa maison, et il était important que nos choix soient durables. Nous avons évité les tissus d’ameublement clairs et veillé à ce que les tissus et les tapis soient lavables.
Coûts principaux du salon
Canapé-lit sur mesure : 4 500 $
Fauteuils pivotants : 2 400 $/paire
Tapis : 779 $
Table basse : 399 $
Lampes de table : 258 $
Panneaux de rideaux : 240 $
Table d’appoint : 149 $
Anneaux pour rideaux : 60 $
Tringle à rideaux : 50 $
Vase : 29 $
Tabourets : 25 $/paire
Les appliques murales tendance et le miroir ondulé apportent du style à la salle de bains principale. Le sol à carreaux et le meuble-lavabo en roseau ajoutent une touche d’originalité.
Dans la salle de bains principale, nous avons opté pour deux couleurs de carreaux de porcelaine bon marché disposés selon un schéma précis afin de créer de la profondeur et de l’intérêt. Nous avons trouvé la plupart des luminaires à petit prix, mais nous avons investi davantage dans la lampe suspendue de la salle à manger afin de donner de la personnalité au centre de cet espace ouvert. Nous avons fait preuve d’une grande créativité en réutilisant les matériaux restants des finitions sur lesquelles nous avions fait des folies. Nous avons utilisé presque chaque centimètre carré de nos dalles Caesarstone pour embellir les meubles de salle de bain bon marché avec de beaux comptoirs et des dosserets uniques.
Les murs jaune beurre et les accents bleus créent une palette sereine dans la chambre de Jennine.
Principaux coûts de la chambre principale
Structure de lit : 849 $
Tapis : 779 $
Fauteuil suspendu : 450 $
Tables de chevet : 298 $
Luminaire de plafond : 150 $
La pièce-penderie fait office de bureau à domicile.
Le plan d’étage prévoyait une pièce-penderie principale surdimensionnée, bien plus grand que ce dont ma mère avait besoin. En installant des armoires à portes en verre cannelé Ikea d’un côté de la pièce-penderie, il nous a été possible de créer un bureau à domicile de l’autre côté avec les restes de matériaux Caesarstone pour le bureau et les restes de plancher en bois dur pour recouvrir les murs et les armoires. Nous avons ainsi obtenu un bureau sur mesure et un espace de rangement organisé pour les vêtements, pour seulement quelques milliers de dollars et un peu de bricolage. C’est la preuve que l’on peut créer un beau design à un prix abordable.
Un évier à bord festonné et un dosseret de forme organique embellissent la salle de bains.
Au final, nous avons aménagé la maison pour moins de 20 000 $, avec pour objectif de lui donner une atmosphère chaleureuse, confortable et harmonieuse. Comment avons-nous fait ? Après avoir consacré une grande partie de notre budget à l’ameublement principal, nous avons fait de bonnes affaires chez HomeSense pour acheter des petites tables et des accessoires de décoration, et nous avons visité les marchés aux puces locaux pour compléter la collection que ma mère a accumulée toute sa vie.
Des panneaux de rideaux ajoutent de la douceur près de la porte arrière. Le mur-galerie dans le coin attire le regard.
Cette année a été marquée par de grands changements pour ma mère, et ça n’a pas été facile. Mais je suis très heureux de la voir aujourd’hui dans cette maison conçue spécialement pour elle, dans une ville qu’elle adore. Ma mère m’a dit : « J’adore rentrer chez moi dans un décor chaleureux, facile à nettoyer, lumineux et personnalisé d’une manière que seul Brian pouvait imaginer. Je me sens tellement gâtée. C’est difficile à expliquer, mais cet endroit est imprégné du talent de mon mari, de son amour et de la vie que nous avons construite ensemble. Brian a apporté tout ça dans ma maison et m’a permis d’accepter d’être heureuse. Quand je pensais que tout était terminé, il a ouvert une porte et la lumière a fait irruption. »
Ce qu’ils ont dépensé
Prix d’achat de la maison : 430 000 $
Finitions/personnalisation (y compris les matériaux) : 37 800 $
Meubles et accessoires de décoration : 16 149 $
TOTAL : 483 949 $
Brian a conçu un revêtement pour la hotte qui s’ouvre pour révéler un rangement pour les épices !
Le choix des carreaux de Brian apporte un style amusant à la salle de bain principale.
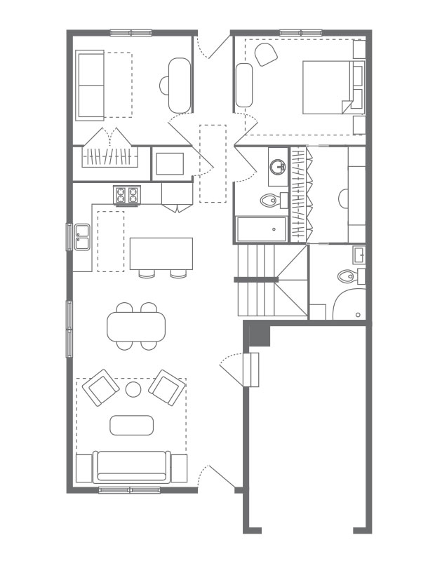
Le plan d’étage.
Les conseils de Brian pour réduire la taille de son logement sans sacrifier le style
Achetez vintage : j’ai découvert que les boutiques des petites villes proposent souvent des articles exceptionnels à des prix incroyables, et qu’elles n’ont pas été dévalisées comme celles des grandes villes. C’est une activité sympa à faire le week-end entre amis ou en famille !
Faites preuve de créativité avec les restes : utilisez les retailles des dalles Caesarstone pour fabriquer des plateaux de table, des étagères et des meubles-lavabos, et utilisez du plancher de bois franc préfinis pour les murs d’accent, les bureaux, les tables et les lambris.
Décidez où vous allez faire des folies et économisez sur le reste : Faites des folies sur les surfaces et les meubles qui seront les plus utilisés, puis économisez sur les accessoires, comme les tapis et les tables d’appoint.
Donnez une nouvelle vie à de vieux meubles : Optez pour l’inattendu : modernisez une table antique avec un nouveau plateau en quartz, associez un canapé contemporain à des tables d’appoint de caractère et combinez un éclairage moderne avec des meubles vintage.
Concevez des espaces multifonctionnels : Le salon dispose d’un canapé-lit pour les invités qui restent dormir, et la pièce-penderie sert également de bureau.
Valerie Wilcox
House & Home
Brian McCourt et Emidio D’Alessio
Brian McCourt